Image Alt

Casa Ceroni

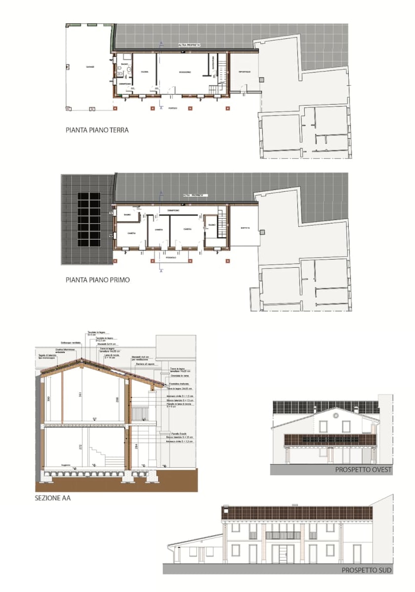
Riqualificazione di un ex fabbricato rurale: “Casa Ceroni”

L’intervento proposto riguarda la riqualificazione di un ex fabbricato rurale in disuso, un tempo adibito a stalla e granaio. L’intervento è volto a mantenere parte degli elementi principali interni ed esterni modificandone parzialmente l’impianto, i fori e gli elementi costitutivi. Quanto ottenuto è un edificio residenziale con le caratteristiche tipologiche, costruttive e formali dell’edificio preesistente, nonostante il cambiamento di destinazione d’uso.

Nuova unità residenziale

Gli annessi rustici esistenti vengono riorganizzati in una nuova unità residenziale. Nella porzione principale al piano terra vengono collocati  gli spazi della zona giorno, al piano primo gli spazi della zona notte. La porzione secondaria al piano terra è adibita a garage.

Il prospetto principale del nuovo edificio, come l’esistente, è scandito da un ordine gigante di quattro pilastri in mattoni a faccia vista a creare una zona porticata antistante alla nuova unità abitativa e, seppur asimmetrico, appare armonioso e proporzionato.

Studio

Luca Rigoni Architetto

Date
Logo Luca Rigoni Architetto. Studio a Bressanvido, Vicenza
Seguici sui nostri canali Social